Saviesa Showroom

Mumbai, Maharashtra (Andheri, Kandivali & Thane)

Commercial

Area: 7,000 sqft (1300 + 2200 + 3500)

Year: 2018

Contractor:
Joad Yunus, Sanjeev Chaudhary, Javed Akhtar, Akhilesh Yadav

Saviesa, a modular kitchen & wardrobes company, launched in Mumbai with three showrooms simultaneously.

Thane Showroom:

This showroom design was one of three showrooms that we did concurrently for the launch of the company. We created a set of Design Guidelines for all their showrooms before embarking on designing each one.

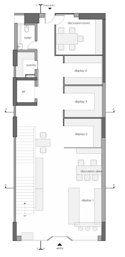
The black stone floor and the white slatted false ceiling are part of the design guidelines for all their showrooms. The slatted false ceiling was used to highlight only the wardrobe and kitchen displays. The colour and material palette are part of the design language used in all showrooms. The idea was to create a neutral, rustic backdrop for the factory-finished products on display. The entrance in every showroom was defined with a textured strand board painted in the company colour.

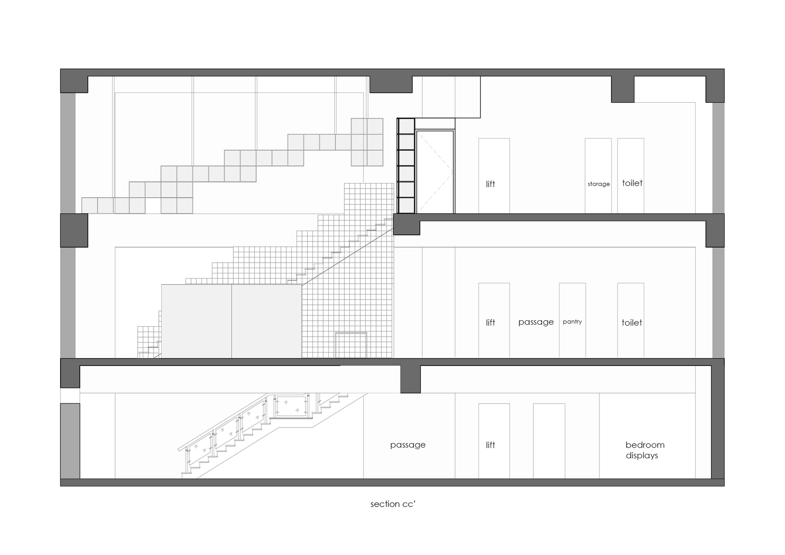
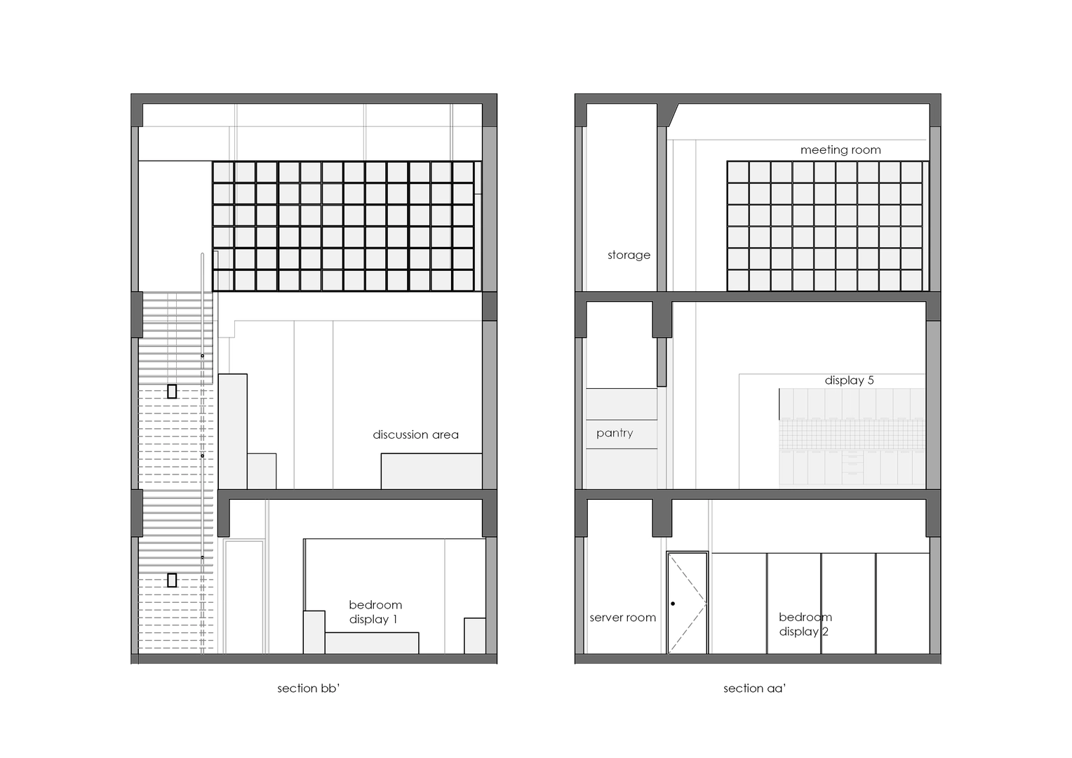
The double height space demanded a special treatment. The grid was used as a device to signify the modular nature of the products of the company. It was a way of connecting the various levels along with lowering the lights for the display below. There are three variants of the MS grid: one was for the lighting, the second was a railing along the stair which serves as a display surface, and the third one is the partition system to separate the office on the mezzanine.

Beyond the double height entrance space are the kitchen displays. The displayed products are lit with focused track light. The grid unites the three-level showroom while providing space for display and as a prop for lighting.

The basement houses the display of wardrobes, study tables, and beds. Distinct lighting defines the corridor from the display areas. The open exposed ceiling and wiring, leaves room for flexibility and changes in the layout.

We're happy to hear from you

Send us a message here or reach us at sejpalandrajearchitects@gmail.com