

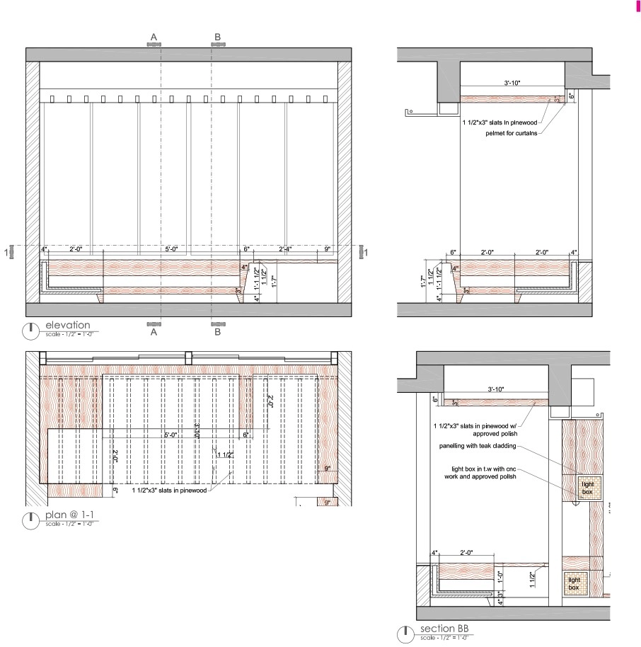
This bespoke interior blends high-quality natural materials with custom craftsmanship. The built in Burma teak units use discreet lights using laser cut design in the wood. This feature allows for integrated ambient lighting that highlights the texture and grain of the Burma teak without visible fixtures cluttering the space. This technique achieves a seamless look that complements the aesthetic of the stone flooring and the “Tree of Life” mural.

The rest of the furniture was sourced from a local designer store and complimented the neutral earthy look. The custom-made wardrobe has a three-dimensional handle crafted in the same wood, the mandir along the bedside is discreetly designed below the pichwais in the balcony area.