

S&RA did a series of remodelling for the American School with a short turn-around time during the summer vacations.
A modern, cheerful, well-equipped office for The High School and Middle School Principals needs a more modern, cheerful and well-equipped office where they could interact with parents and students.
The main administrative office remodelling consisted of better work spaces for the CFO, HR, office admin, Secretary to Head of the School, a waiting area for parents, official visitors. Since it was connected to the Head of School office, the new area was designed to represent the friendliness and openness of ASB by using bright colours and glass.

Modular furniture was combined with on-site carpentry work to suit the requirements of over 17 staff members in a 1200 sq. ft area and it also included an all-glass cylindrical meeting room in the centre of the office area.
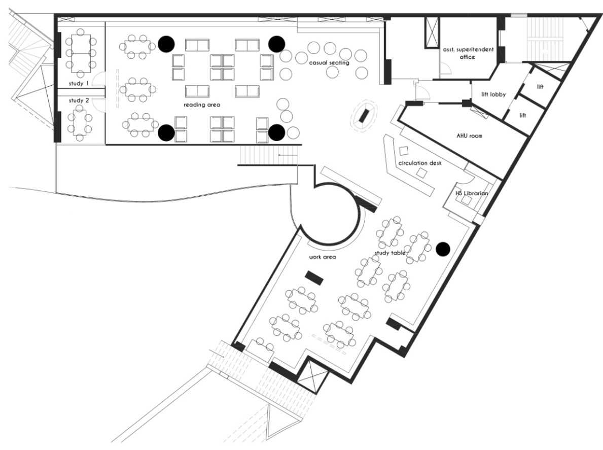
The school library also served as a public library for the parents and the school community. The existing library was on the ground and partly on the mezzanine level. To meet the requirements of the elementary and high school, the mezzanine was extended to increase the area by about 60%.
The spaces were reorganized to accommodate a new circulation desk area, librarian office, magazine display. By planning more study tables, group and individual reading areas and glass cabins for meetings or group work, the library became a central space for the different groups of the school.